福寿居食堂(宿舍)方案
时间:2018-05-08 08:48:15 来源:
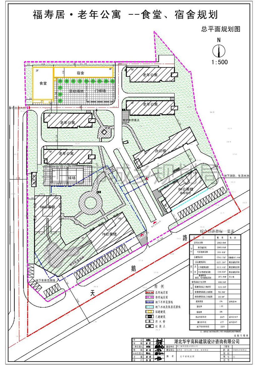
荆门福寿居置业有限公司申报的福寿居位于天鹅路9号,原规划及建筑方案于2014年3月经市规委会审批,为了能给入住老人提供更好的餐饮服务,促进福寿居养老事业的健康发展,特申请新建食堂及员工宿舍,建筑面积约2800平方米。
根据住建部《关于城乡规划公开公示的规定》(建规[2013]166号),现将该项目方案进行批前公示,征求相邻单位及群众意见。若对此方案有异议,或认为该方案对自身有重大利益影响要求听证的,请在公示期内持房产证、身份证等有效证件书面向我局陈述或提出听证申请,逾期视为放弃陈述、听证权力,对该项目建设无异议。
公示时间:2018年5月8日—2018年5月17日
联系电话:2381644 2359200(听证)

